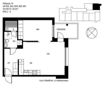
ITEM GROUP: vuokra-asunnot