VUOKRATTAVA

Harjunsalontie 2, Kangasala


Harjunsalo, Kangasala

829 €/kk
Vuokra
60 m²
Asuinpinta-ala
2
Huoneita
4/7
Kerros
2015
Rakennusvuosi
kerrostalo
Rakennuksen tyyppi
C2013
Energialuokka

Vuokrattavana 1.1.2026 vapautuva tilava kaksio Kangasalan Harjunsalosta.

KATSO VIDEOESITTELY (2020): https://youtu.be/jpbjd73UybU

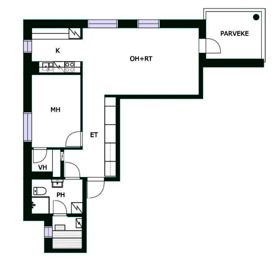
Asunnossa on erinomainen pohjaratkaisu ja se on läpitalon päätyasunto, jonka valoisuuden takaa ikkunat peräti kolmeen suuntaan. Tyylikäs keittiö on täysin koneistettu ja sisältää mm. astianpesukoneen. Reilun kokoisessa laatoitetussa pesuhuoneessa on pesutornillekin oma paikka ja oma sauna tuo pientä luksusta asumiseen. Tilavalla lasitetulla parvekkeella on mukava vilvoitella löylyjen jälkeen. Säilytystilaa löytyy poikkeuksellisen paljon eteisen lukuisista kaapeista ja makuuhuoneen vaatehuoneesta.

Asunnon yhteydessä on mahdollisuus vuokrata autokatospaikka hintaan 49 €/kk.

Asunnolla on erinomainen sijainti, josta on hyvät liikenneyhteydet niin omalla, kuin julkisillakin mm. Tampereelle ja Kangasalan keskustaan. Myös luonto on lähellä ja mukavat lenkkeilymaastot lähtevät lähes kotiovelta.

Vakuuden voit vaihtaa Takuuvapaa-palveluumme, jonka hinta on 20 e/kk + avausmaksu 39 e.

Mikäli kiinnostuit, ole hyvä ja täytä hakemus: www.asuntopehtoori.fi/hakemus

Esittelyihin kutsutaan hakemuksen perusteella.

Reponen Jenni

Vuokravälittäjä, LVV

044 774 4490

jenni.reponen@asuntopehtoori.fi

ASUNNON PERUSTIEDOT

Sijainti Harjunsalontie 2, 36200, Kangasala, Kangasala
Kaupunginosa Harjunsalo
Kohdenumero 21384077
Kerrokset 4/7
Asuintilojen pinta-ala 60m2
Kokonaispinta-ala 60m2
Lisätietoja pinta-alasta yhtiöjärjestyksen mukainen
Huoneiston kokoonpano 2h+k+vh+s+las.p
Huoneita kaksio
Tyyppi kerrostalo
Rakennusvuosi 2015
Käyttöönottovuosi 2015
Vapautuminen 31.12.2025

HINTA JA KUSTANNUKSET

Hinta
Vuokra 829,00 €/kk
Lisätietoa vakuudesta 2 x kuukauden vuokra
Vesimaksu 25,00 €/kk
Vesimaksun lisätiedot oma mittari
Sauna Oma sauna
Parveke parveke lasitettu
Asunnon kunto hyvä
Lämmitysjärjestelmän kuvaus kaukolämpö

ASUNNON TILAT JA MATERIAALIT

Rakennus- ja pintamateriaalit
Keittiön kuvaus liesikupu astianpesukone
Saunan kuvaus Oma sauna

Taloyhtiö

Taloyhtiö
Taloyhtiön nimi Asunto Oy Kangasalan Herttua
Energialuokka C2013
Tontin omistus oma